• Architecture
  • Design
  • Photo
  • Blog

Jeff Sargis

Architecture + Design

  • Architecture
  • Design
  • Photo
  • Blog

Berlin Musikschule

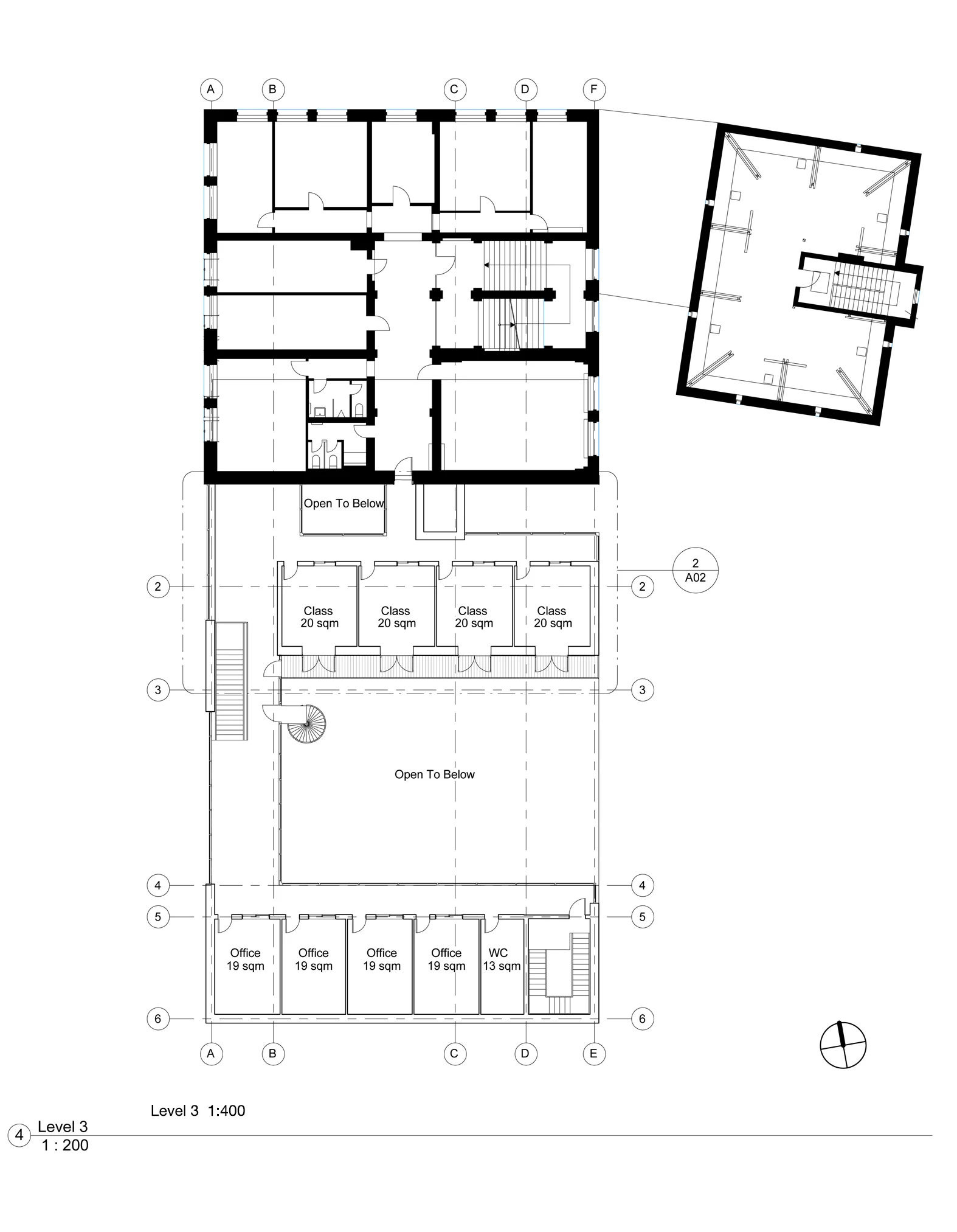
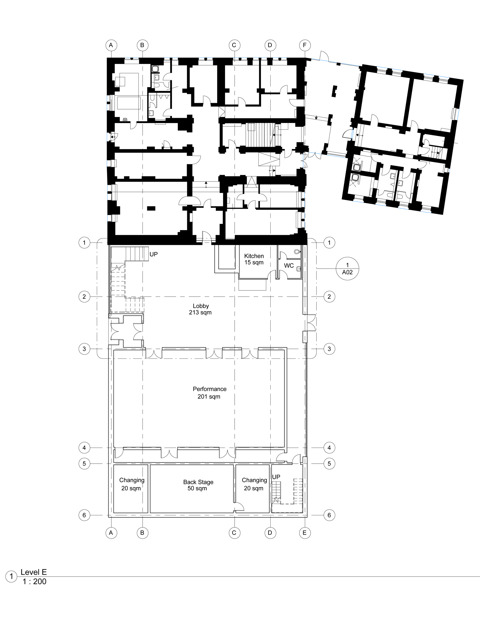
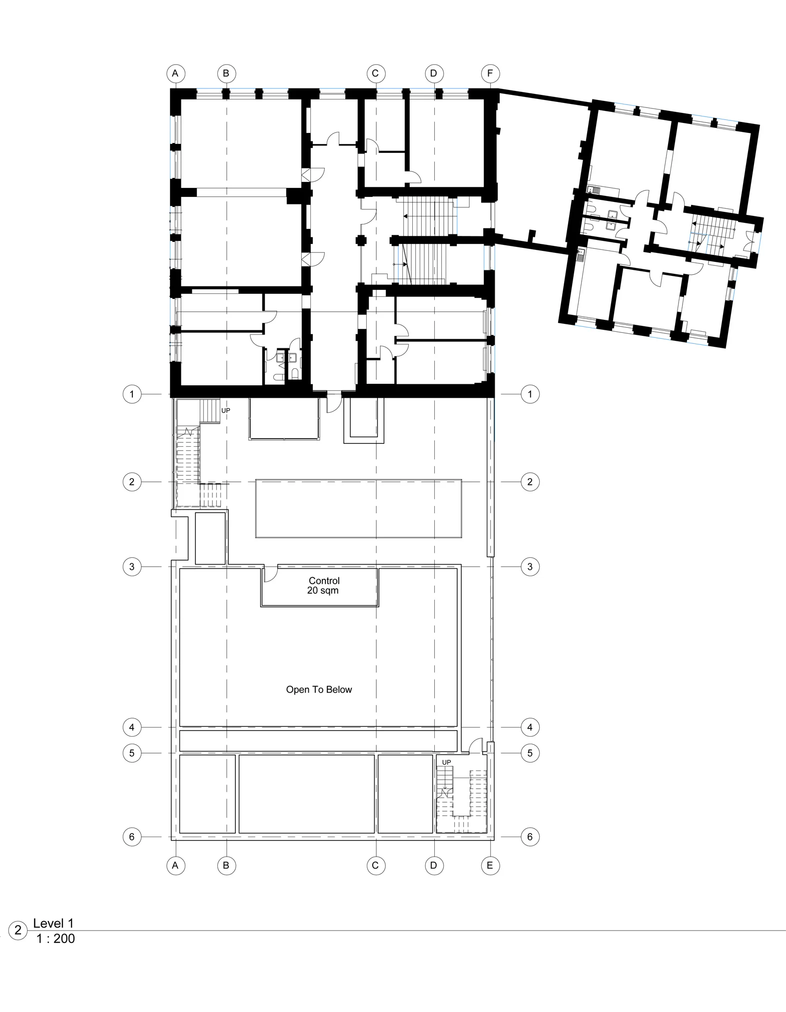
The site in Berlin Germany was one of the few remaining open lots in the area due to the partial destruction of the original building. The block was completed by making the addition an extension of the existing building. The addition mirrors and compliments the old in a modernistic fashion. Portions of the overall mass were cut out to create open spaces for stairs, light shafts, and a large open-air atrium. The large atrium was created to allow natural light into the adjacent classrooms and seminar rooms making them more comfortable to inhabit. The strong connection to the outside opens the spaces allowing for natural ventilation and blurs the boundary between interior and exterior. The green roof becomes the buildings own private park, elevated off the ground for privacy of the students and instructors.

exterior.jpg
courtyard.jpg
elevation.jpg
elevations 2.jpg
level 1.jpg
level 2.jpg
level 3.jpg
level 4.jpg
Section.jpg
model.jpg

Jeff Sargis architecture & design , all rights reserved.